₽ 3 900 000
- 55.9 кв.м
Описание
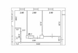
Продаётся 2-комнатная квартира, 55,9 м²
???? г. Рязань, ул. Октябрьская, д. 16 | 2 этаж | Потолки 3 м
Просторная двухкомнатная квартира с высокими потолками 3 метра и оригинальной лепниной. Отличный вариант для тех, кто хочет сделать ремонт под себя.
✔️ Площадь 55,9 м²
✔️ Кухня 10,5 м²
✔️ Совмещённый санузел
✔️ Встроенный шкаф в стене
✔️ 2 этаж
Состояние — под косметический ремонт.
Санузел и кухня полностью освобождены и готовы к отделке, коммуникации заменены. Есть газовая колонка. Установлены окна ПВХ, чугунные батареи — квартира тёплая.
При необходимости может остаться мебель: диван, шкафы, кресла, гардероб.
Отличное расположение: ряДома поликлиника, детские сады, школы, Дом культуры, парк, остановки и магазины. Соседи тихие, спокойные.
???? Звоните — покажу в удобное время!
Оказываю помощь в одобрении ипотеки.
Полное юридическое сопровождение, гарантия чистоты сделки и безопасность расчётов для каждого клиента.
???? г. Рязань, ул. Октябрьская, д. 16 | 2 этаж | Потолки 3 м
Просторная двухкомнатная квартира с высокими потолками 3 метра и оригинальной лепниной. Отличный вариант для тех, кто хочет сделать ремонт под себя.
✔️ Площадь 55,9 м²
✔️ Кухня 10,5 м²
✔️ Совмещённый санузел
✔️ Встроенный шкаф в стене
✔️ 2 этаж
Состояние — под косметический ремонт.
Санузел и кухня полностью освобождены и готовы к отделке, коммуникации заменены. Есть газовая колонка. Установлены окна ПВХ, чугунные батареи — квартира тёплая.
При необходимости может остаться мебель: диван, шкафы, кресла, гардероб.
Отличное расположение: ряДома поликлиника, детские сады, школы, Дом культуры, парк, остановки и магазины. Соседи тихие, спокойные.
???? Звоните — покажу в удобное время!
Оказываю помощь в одобрении ипотеки.
Полное юридическое сопровождение, гарантия чистоты сделки и безопасность расчётов для каждого клиента.
Недвижимость
На продажу
Количество комнат
2
Этаж
2
Количество этажей
5
Общая площадь
55.9 кв.м
Год выпуска
1958
Жилая площадь
31 кв.м
Гараж
Нет
Телефон
Добавлено
20 часов назад
Страна
Россия
Область
Рязанская область
Город
Рязань
Адрес
ул Октябрьская, д. 16
- 7 Просмотра(ов)
